
Diseño: Yemail Arquitectura.
Arquitectos: Antonio Yemail, Daniel Molina.
Ubicación: Guasca, Cundinamarca.
Constructor: : Arbey Pulido.
Programa: Vivienda unifamiliar.
Fotografías: Mateo Perez.
Año: 2021-2022
Descripción enviada por el equipo del proyecto



Una cabaña se erige en el filo de un cerro con vistas al valle de Cota, un municipio en la sabana de Bogotá, a una altitud de 2566 metros sobre el nivel del mar. La casa encuentra su origen en el relato de otra construida en 2007 en Sisga, que sirvió como el proyecto fundacional de nuestra oficina: una cabaña con corte mariposa construida con los orillos descartados por aserradores al talar un bosque de pinos. La vocación de prescindir de lo innecesario es el hilo conductor que conecta las preguntas de entonces con las de ahora, y en su conjunto con esa apreciación de la vida primitiva que está en la promesa de habitar una cabaña.






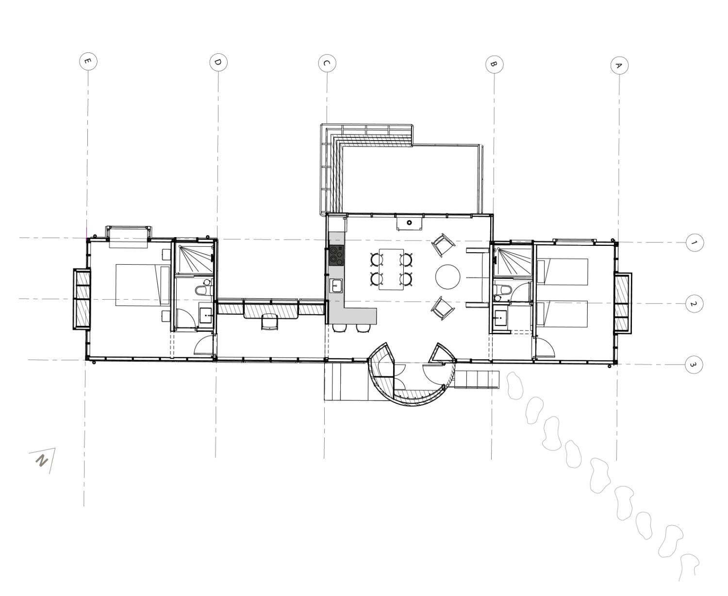
La vivienda se sitúa frente a un cuerpo de bosque que la protege de los vientos que bajan desde el oriente y se extiende en un volumen ortogonal orientado hacia el poniente y las vistas lejanas. La ondulación del terreno dicta que el máximo cuidado está en levantarse sobre pilotes.
Los espacios se concentran en una barra moldeada con acciones que definen el confort interior y la relación con el suelo más inmediato. En los extremos, los dormitorios que rematan en cajas que contienen los armarios proporcionando privacidad y profundidad a las ventanas moduladas de madera, que le deben mucho a la arquitectura japonesa.






En el medio, se reúnen sala, comedor y cocina, extendiéndose como un cajón sobre un deck exterior que flota en el punto más pendiente y ofrece una conversación visual entre el interior y el tiempo cambiante del paisaje. Entre el salón y el dormitorio principal se celebra un pequeño ritual con el tránsito por un corredor que recorta el volumen, refinándose con la presencia del dosel de unas acacias chinas enmarcadas por el oriente y de un escritorio contenido entre el patio resultante. El volumen a dos aguas con aleros en los extremos se redefine por la anomalía de un cilindro de doble altura en ladrillo visto que gravita con otro peso y da raíz a la levedad de la caja de madera. También articula el ingreso con la transición por el vestíbulo, escondiendo un depósito contra el terreno.






La cabaña es una especie de reverencia hacia el mundo natural y, desde ahí, hacia los materiales del mundo construido. La arcilla recocida en las tejas de la cubierta refleja los visos cobrizos en el atardecer, mientras las cerchas interiores de pino tecumanii se exhiben entre muros blancos que saben reflejar su sombra. En palabras de los Smithsons: “este manejo particular de los materiales, no en el sentido artesanal, sino en su apreciación intelectual, siempre ha estado presente en el movimiento moderno, y sin duda ha sido algo conocido, lo que tiene de nuevo es que encuentra sus afinidades más cercanas no en un estilo arquitectónico del pasado, sino en formas de vivienda campesinas tradicionales, pero que nunca están de moda: una poética sin retórica”






El espíritu de los materiales se manifiesta gracias a las manos del maestro Arbey, quien conoce como nadie la materia de la que está hecha esta montaña. El ejercicio de habitar se siente en la calidez de la vida que le dan María, León y Anabel. Daniel Molina fue el arquitecto a cargo, y Mateo Pérez estuvo tras el lente de estas fotos de Septiembre.












Galería del proyecto







